
SOLD
GIA: 13,690 sq ft (1,272 m2)
NIA: 12,200 sq ft (1,114 m2)
Wick Tower, 138-152 Powis Street, Woolwich, London, SE18 6LR
On the instructions of the Fixed Charge Receivers
The property occupies a prominent position on the northern side of Powis Street in Woolwich town centre. Powis Street comprises a mixture of retail offerings including national operators such as TK Maxx, Primark and Boots, as well as a number of cafés, restaurants and other amenities.
The property benefits from good public transport links with both Woolwich Arsenal and Woolwich stations situated within a short walk, with Elizabeth Line, Thameslink, DLR and Southeastern rail links, providing regular services into Central London and London
City Airport.
There is vehicular access to the rear of the unit, with a loading bay and five designated parking spaces at lower ground floor level.
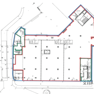
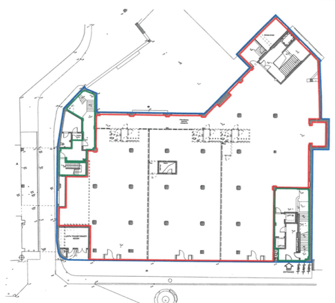
The property comprises a large commercial unit (Class E) situated within a modern mixed use development fronting Powis Street.
The unit is predominately arranged over the ground floor with loading access and lift, plant room and bin store located at lower ground level. There are five designated car parking spaces and a
loading bay accessed via gates to the rear of the unit.
Internally the unit provides a large open plan space at ground floor level extending to 12,808 sq ft GIA and a net lettable area of 12,200 sq ft. The property is in shell and core condition with capped services. The property would suit a variety of uses with the potential to sub-divide subject to the necessary consents.
Floor to ceiling height of 4.5m. BREEAM Certified.
The property is held long leasehold for a term of 999 years from 1st January 2022 at a peppercorn ground rent.